The Martin is een elegante stedelijke woontoren van 16 bouwlagen, in het hart van het nieuwe Bajeskwartier in Amsterdam. De hoofdopzet van het gebouw kenmerkt zich door vier in elkaar grijpende kubussen. Samen met de open en lichte gevels vormt het gebouw daarmee een flink contrast met de voormalige Bajestorens.
Stapeling van
uitkragende volumes
Uitkragingen bepalend in constructief ontwerp
The Martin in het Bajeskwartier
1 The Martin in uitvoering (foto: BAM)
1
36? CEMENT 8 2024
The Martin (voorheen heette deze
toren The Ruby) is een 50 m hoge
woontoren, voor 103 appartemen -
ten.
Bepalend voor de constructieve opzet
zijn de ten opzichte van elkaar versprongen
volumes. Deze zorgen voor uitkragingen, met
een maximale lengte van bijna 6 m. Het ge-
heel staat bovenop een tweelaagse parkeer-
kelder (zie het artikel 'Parkeren onder het
Bajeskwartier', elders in dit nummer).
Constructieve opzet
De uitkragingen hebben een grote impact op
het krachtenspel. Er is een grotere samen -
hang gewenst dan gebruikelijk, te meer om -
dat het gebouw vanaf de 8e verdieping zelfs
in twee richtingen uitkraagt (fig. 5). Vanwege
de grote krachten die dit met zich mee-
brengt is de draagconstructie ontworpen als
een monoliete structuur, uitgevoerd in de
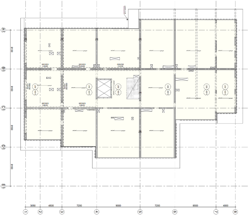
wanden-breedplaatmethode. De woningscheidende wanden van
280 mm fungeren ieder als een wandschijf
en zijn om die reden ter plaatse gestort uit-
gevoerd. De h.o.h.-maat van de wanden loopt
uiteen van 4,0 m tot 9,0 m (fig. 6). Ter plaatse
van de grootste uitkragingen zijn de wanden
verdikt naar 350 mm, in verband met de
optredende krachten. De vloeren, uitgevoerd met breedplaten,
hebben een totale dikte van 280 mm. De
breedplaatvloeren overspannen in één rich -
ting tussen de wandschijven, ook ter plaatse
van de uitkragingen. Er ontstaan daardoor
geen positieve momenten (veldmomenten)
ter plaatse van de naad, waardoor mogelijke
problemen in dat detail niet aan de orde zijn.
Rondom het gebouw zijn prefab balkons
voorzien, met een maximale uitkraging van
2,5 m. Stabiliteit
De stabiliteit wordt gewaarborgd door de
centrale wandschijven, twee in beide hoofd -
richtingen. In langsrichting zijn dat de wan -
den op letterassen B1 en C1, in dwarsrichting
de wanden op de cijferassen 4 en 5 (fig. 6).
Deze wanden vormen samen de wat in dit
project de #-structuur is gaan heten. Er zijn
meerdere redenen dat deze wanden zijn
gekozen als stabiliteitswanden:
De wanden zijn gebouwhoog.
De wanden zijn nagenoeg symmetrisch
gepositioneerd ten opzichte van het zwaarte-
punt van de stabiliteitsbelasting (wind en
scheefstand).
De wanden lopen grotendeels door tot in
de kelder.
PROJECTGEGEVENS
project
Bajeskwartier Amsterdam,
The Martin (gebouw E) opdrachtgever/
projectontwikkelaar Bajes Kwartier
Ontwikkeling C.V.
(samenwerkingsverband AM, AT Capital en
Schröders Capital) architect OMA
constructieve uitwerking ABT
geotechnisch advies ABT
aannemer
BAM Wonen en BAM Bouw en Techniek
The Martin is een elegante stedelijke woontoren van
16 bouwlagen, in het hart van het nieuwe Bajeskwartier in Amsterdam. De hoofdopzet van het gebouw kenmerkt zich
door vier in elkaar grijpende kubussen. Samen met de open
en lichte gevels vormt het gebouw daarmee een flink contrast met de voormalige Bajestorens.
CEMENT 8 2024 ?37
De wanden hebben een voldoende gedron-
gen karakter en inwendige samenhang om
als stabiliteitswand te kunnen functioneren.
Vanwege de onderlinge interactie zijn de
wanden ondergebracht in één rekenmodel
voor de constructieve analyse (fig. 7, rechts).
In dit model is ook de wand in as 6 meege-
nomen, vanwege de complexe krachtswer-
king in die wand onder andere door de aan -
wezige uitkraging en sparingen. Er is ook een 2D constructief schema
opgesteld. Hierin zijn de stabiliteitselementen
aan de onderzijde gesteund door de soutte-
rainvloer en zijn ze verend ingeklemd in de
fundering van de parking (fig. 7, links). In het hart van het gebouw, tussen as-
sen 4-5 en B1-C1 ontstaat een betonnen kern.
Hierin bevinden zich het trappenhuis en de
liftschachten. Uitkraging op uitkraging
Voor het construeren van de gebouwuitkra -
gingen is zoveel mogelijk gebruikgemaakt
van de betonnen wandschijven, die zijn inge
-
zet als verdiepingshoge wandliggers. Belang -
rijk aandachtspunt zijn de deursparingen;
die verzwakken de wandliggers aanzienlijk.
In het gebouwontwerp is de positie van de
sparingen dan ook nauwgezet afgestemd
tussen architect en constructeur. Als ont
-
werpvertrekpunt is gekozen voor minimaal
500 mm hoge betonnen lateien boven de
sparingen. Op plaatsen waar geen deurko
-
zijn aanwezig is, maar louter een deurspa -
ring, zijn de lateien verhoogd naar 550 mm.
In de lateien was er zeer beperkt
ruimte om sparingen aan te brengen voor
de installaties. Daarom is het aantal sparin -
gen, in afstemming met de installateur, ge-
minimaliseerd. Dit geldt overigens voor alle
2 Impressie van The Martin met uitkragende volumes (bron: Bajeskwartier Amsterdam / Beeldenfabriek)
IR. RONALD
WENTING RO
Senior Adviseur Constructies ABT
IR. KARS HAARHUIS ProjectleiderABT
auteurs
2
38? CEMENT
8 2024
3 Vier in elkaar grijpende volumes
4 Vier volumes bezien vanuit verschillende hoeken
5 Model woongebouw
De ten opzichte
van elkaar
versprongen
volumes zorgen
voor uitkragingen
van bijna 6 m
3
4
5
betonnen wandschijven die functioneren als
wandliggers ten behoeve van de verticale
krachtsafdracht.
Het bouwvolume in de gebouwhoek ter
plaatse van gebouwassen D1?4/6 kraagt op
de 8e verdiepingsvloer uit in twee richtin -
gen. In de richting van de cijferassen wordt de uitkraging opgevangen door de betonnen
wanden op as 4 en 5. Haaks daarop wordt de
uitkraging gerealiseerd door een twee ver-
diepingen hoog stalen vakwerk in de gevel in
as D1 (fig. 8). De wand op as 6 fungeert als vieren -
deelligger. Deze vangt de belasting van de
bovengelegen bouwlagen op. De belasting
CEMENT 8 2024 ?39
E1
1 2 3 4 5 6 7 8
D1
C1
B1
A1
280+11110 350
350
280+11110 280+11110 280+11110
3050 4500 7200 9000720085504000
8100 8100 81008100
350 350 350
ø219,1x8ø219,1x8
7a
6
6 Constructieve plattegrond The Martin (niveau 1)
7 Rekenmodel met windbelasting met links het 2D-schema en rechts de 3D-uitwerking
7b
40? CEMENT 8 2024
vierendeelligger
2+0,75m 4,6m+0,5m
trekband
trekband ophangwapening
ophangwapening
drukdiagonaal
drukdiagonaal
as 4 As C1
As D1
as 5
vakwerkligger
uit deze vierendeelligger wordt in as D1 via
een trekstaaf in het vakwerk naar de wand -
schijf op as 5 gebracht en daar met behulp
van ophangwapening ingeleid en via een
trekband en drukdiagonaal afgedragen. Het
ontstane koppel in as D1 wordt opgevangen
in de wand in as 4. Vanwege de grootte van
de krachten, zijn de wanden in as 4 en 5 uit-
gevoerd met een wanddikte van 350 mm. Aan de andere zijde van de vieren -
deelligger wordt de belasting met behulp
van ophangwapening ingeleid in de wand in
as C1 en ook weer via een trekband en druk -
diagonaal afgedragen.
Afdracht naar parkeerkelder
Op beganegrondniveau wordt de wanden -
structuur deels vervangen door een meer
open structuur met wandpenanten. Dit ten
behoeve van de indeelbaarheid van deze
ruimte. De betonnen kern in het hart van het
gebouw (de kern van de #-structuur) loopt
wel volledig door van beneden tot boven. Ook in de parkeerkelder wordt een
deel van de wanden gedragen door kolom -
men en penanten, ook weer met uitzonde-
ring van de kern van de #-structuur. Lokaal zijn de wanden opgedikt naar 350 mm, ten
behoeve van de krachtsinleiding van de
bovenbouwwanden naar de kolommen. In
de souterrainvloeren zijn verdikte stroken
voorzien om de trekkrachten uit de wandlig -
gers te kunnen opnemen. Deze vormen te-
gelijkertijd de drager voor de stortbelasting
van de bovenliggende wand.
Flanken
De gebouwflanken aan zowel de oost- als
westzijde van het gebouw steken uit voorbij
de ondergrondse parkeergarage (bij as 1 en
8). Deze flanken worden gefundeerd op fun -
deringspoeren ongeveer op maaiveldniveau. Aan de oostflank is het fundament
voor een grondkerende wand van de be-
staande gevangenismuur aanwezig (fig. 10).
Dit grondkerende L-element heeft een 4,0 m
brede teen. Er is voor gekozen deze keercon -
structie in tact te laten. De draaglijnen van
het gebouw lopen voor de fundering van dit
element langs, waardoor er geen interactie
is tussen beide constructiedelen. De begane
grondvloer kraagt wel deels uit boven de
teen van het element. Dit is opgelost met
uitkragende betonnen balken.
De dubbele
uitkraging
wordt deels
gerealiseerd
door een twee
verdiepingen
hoog stalen
vakwerk
8 Principe krachtswerking uitkraging op uitkraging en stalen vakwerk
8
CEMENT 8 2024 ?41
E 00 begane grond +0
E 01 eerste verdieping +5200
E 02 tweede verdieping +8200
E -1 kelder-4650
E -2 kelder-7650
1
E 03 derde verdieping +11200
N.A.P.+400
2 3 4 5 6 7 8
E 04 vierde verdieping +14200
E 05 vijfde verdieping +17200
E 06 zesde verdieping +20200
E 07 zevende verdieping +23200
E 08 achtste verdieping +26200
E 09 negende verdieping +29200
E 10 tiende verdieping +32200
E 11 elfde verdieping +35200
E 12 twaalfde verdieping +38200
E 13 dertiende verdieping +41200
E 14 veertiende verdieping +44200
E 15 vijftiende verdieping +47200
E 16 dakverdieping +50200
E 00a mezzanine +1500
E -00a souterrain -1850
betonkolom350x2200 C45/55
betonkolom
350x1500 C45/55
betonkolom 600x1200 C50/60
betonkolom
600x1200 C50/60
betonkolom600x1200 C50/60 betonkolom
600x1200 C50/60
beton ihwg d=350
beton ihwg d=350
600X500 C45/55
3050 4500 7200 9000720085504000
beton ihwg d=280
C35/45
beton ihwg d=280C35/45
beton ihwg d=280C35/45
beton ihwg d=280
C35/45
beton ihwg d=280 C35/45 beton ihwg d=280
C35/45
beton ihwg d=280
C35/45
beton ihwg d=280 C35/45
beton ihwg d=280 C35/45
betonkolom280x400C35/45
600X500 C45/55
E 17 dakverdieping +52150
1 : 100Wand as B1
uitkraging en
vakwerkligger
9
10
9 DO-BIM-model draagconstructie met opvangconstructie voor de uitkraging
10 Constructie t.p.v. grondkerende constructie bestaande gevangenismuur DO-BIM-model constructie 42? CEMENT 8 2024
Balkons
Rondom het gebouw zijn prefab balkons
voorzien. Deze worden nabij de wanden ge-
koppeld met de vloerranden en op de kopse
gevels aan de wanden en penanten. Door de
strenge vervormingseisen van de vloerran -
den, bleek het ter plaatse van de grote vloer-
overspanningen en grote uitkragende bal -
kons noodzakelijk de vloerenranden als
ingeklemd in de wanden te beschouwen. Na -
bij de oplegging is dwarskrachtwapening op-
genomen, in de vorm van beugels die uit de
schil van de breedplaten steken.
Robuustheid
De constructie van de woontoren is dusdanig
ontworpen dat de schade bij een calamiteit
wordt beperkt. De constructie is uitgevoerd
met robuuste betonkolommen, die bestand
zijn tegen aanrijdingen, en trekbanden in zo-
wel de wanden als vloeren. Voor het stalen
vakwerkspant is er mede op basis van een ri -
sicoanalyse voor gekozen een maximale uit-
nuttingsgraad van 80% toe te staan. Dit geldt
voor zowel de profielen als de verbindingen. Ook de verbinding tussen het vakwerkspant
en de betonwand is hierop getoetst.
Daktuinen
Op het dak van de 6e en de 9e verdieping wor-
den daktuinen gerealiseerd (fig. 11). Hier is
een verhoogde dakbelasting gerekend. Bomen
zullen boven de dragende wanden of kolom -
men worden gepositioneerd. De belasting op
de balkons is nabij de daktuinen enigszins
beperkt door toepassing van balustrades hal -
verwege de uitkraging. Hierdoor is er op het
uiteinde van deze balkons uitsluitend sprake
van incidentele beloopbaarheid. Het dak van
de 16e verdiepingsvloer is uitgerekend op
zonnepanelen en de installatie voor gevelon -
derhoud.
Najaar 2026
Van de 103 woningen zijn er op dit moment
nog slechts twee te koop. De bouw is inmid -
dels gestart, wat onlangs feestelijk is gevierd
met de toekomstige bewoners en betrokken
partijen. Naar verwachting wordt The Martin
in het najaar van 2026 opgeleverd.
11
11 Impressie van The Martin met uitkragende volumes (bron: Bajeskwartier Amsterdam / Beeldenfabriek) CEMENT 8 2024 ?43
Thema Bajeskwartier
Dit artikel is onderdeel van een special van Cement over het Bajeskwartier. Voor een overzicht van de andere artikelen zie www.cementonline.nl/bajeskwartier.
Projectgegevens
Project: Bajeskwartier Amsterdam, The Martin (gebouw E)
Opdrachtgever/projectontwikkelaar: Bajes Kwartier Ontwikkeling C.V. (samenwerkingsverband AM, AT Capital en Schröders Capital)
Architect: OMA
Constructieve uitwerking: ABT
Geotechnisch advies: ABT
Aannemer: BAM Wonen en BAM Bouw en Techniek
The Martin (voorheen heette deze toren The Ruby) is een 50 m hoge woontoren, voor 103 appartementen. Bepalend voor de constructieve opzet zijn de ten opzichte van elkaar versprongen volumes. Deze zorgen voor uitkragingen, met een maximale lengte van bijna 6 m. Het geheel staat bovenop een tweelaagse parkeerkelder (zie het artikel ‘Parkeren onder het Bajeskwartier’).
Reacties