De Meelfabriek in Leiden ondergaat een grootschalige transformatie, waarbij een industrieel gebouwencomplex wordt herontwikkeld tot multifunctioneel woongebied (fig. 2). Oude monumentale gebouwen worden gerenoveerd en er komen nieuwe gebouwen bij. In dit tweede artikel van een serie van drie wordt het constructief ontwerp van twee nieuwe bouwwerken toegelicht: de parkeergarage en de Singeltoren.
1 De nieuw gebouwde Singeltoren. Foto: Corentin Haubruge
Nieuw tussen oud
Meelfabriek (2): Nieuwbouw op een bestaand
industrieel gebouwencomplex
1
6?CEMENT?5 2025
In het nieuwe plan wordt De
Meelfabriek, dat ligt aan de cen-
trumzijde van de historische
singel in Leiden, een knooppunt
voor wonen, werken, hotel, spa,
horeca en kunst en cultuur.
Het
bestaande Meelfabriekcomplex kent een
groot aantal gebouwen (fig. 3). Een deel
daarvan wordt getransformeerd, waarbij de
bestaande constructies rigoureus worden
aangepakt om nieuwe functies mogelijk te
maken. Een klein deel van de bestaande
gebouwen is gesloopt, onder meer om vrije
zichtlijnen te creëren. Ook worden er diverse
nieuwe gebouwen gemaakt: een drielaagse
ondergrondse parkeergarage, een zwembad
en nieuwe woongebouwen waaronder twee
nieuwe woontorens, de Singeltoren en de
Silotoren.
Dit artikel, het tweede van een serie
van drie, gaat over de nieuwbouw in fase 1:
de parkeergarage en de Singeltoren (fig. 3).
De transformatie van de oude gebouwen is
beschreven in het eerste artikel 'Puzzelen
met bestaande constructies' in Cement 2025/3.
In het derde artikel worden het bestaande
silogebouw, de nieuwe silotoren (bovenbouw)
en het zwembad beschreven. Deze onderde-
len zijn nog in voorbereiding; dit artikel
verschijnt dan ook pas in 2026.Parkeergarage
Bij de start van het project is begonnen met
het onderzoeken van de beste oplossing
voor het maken van 300 parkeerplaatsen,
op of onder het terrein. Er zijn diverse
oplossingen beschouwd: bovengronds,
ondergronds, dieper of minder diep. Uit de
kostenramingen van de verschillende scena-
rio's bleek een drielaagse ondergrondse
garage het meest efficiënt. Deze oplossing,
met toepassing van onderwaterbeton,
leverde 270 parkeerplaatsen op van circa
? 40.000,- per parkeerplaats (prijspeil 2018).
Deze had de voorkeur boven een variant
met een tweelaagse ondergrondse garage,
zonder onderwaterbeton. Die variant leverde
170 parkeerplaatsen op, van circa ? 45.000,-
per parkeerplaats.
Op de parkeergarage bevindt zich een
daktuin (foto 5) en bovenop de kelder staat
de nieuwe Singeltoren.
IR. ROB DOOMEN
Partner / Adviseur
Constructies
Pieters
auteur
De Meelfabriek in Leiden ondergaat een grootschalige transformatie, waarbij een industrieel
gebouwencomplex wordt herontwikkeld tot multifunctioneel woongebied (fig. 2).
Oude monumentale gebouwen worden gerenoveerd en er komen nieuwe gebouwen bij.
In dit tweede artikel van een serie van drie wordt het constructief ontwerp van twee
nieuwe bouwwerken toegelicht: de parkeergarage en de Singeltoren.
CEMENT 5 2025 ?7
Fase 1
Fase 2
PARKEERGARAGE
2 Transformatie Meelfabriek: (a) < 2020 (foto: Corné Houwaard); (b): 2025(foto: Corentin Haubruge);
(c): > 2027 (foto: De Meelfabriek)
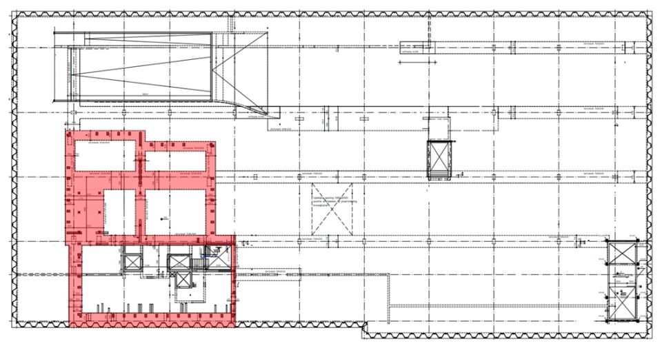
3 Plattegrond Meelfabriekcomplex. In dit artikel worden de parkeergarage en de Singeltoren beschreven
PROJECTGEGEVENS
project
De Meelfabriek
architect
Studio Akkerhuis, Parijs
ontwerp masterplan
Peter Zumthor
constructeur
Pieters
aannemer
Van der Wiel Bouw
aannemer
parkeergarage
Van Hattum en
Blankevoort
betonwerk
Hendriks/Van Muijen
Betonbouw en HCI
Betonindustrie (prefab)
bouwfysica en brand
LPB Sight
installaties
Burg installatietechniek
2a
2b 2c
3
8?CEMENT?5 2025
Bouwput?De kelder ligt ingesloten tussen
het bestaande Riffellokaal/Molengebouw en
de twee nieuwe DUWO-gebouwen. Het Riffel-
lokaal/Molengebouw is gefundeerd op houten
palen. Het maken van een ruim 11 m diepe
bouwput voor de parkeergarage, op 5 m
naast een rijksmonument op houten palen,
is geen sinecure.
Alle constructies en uitvoeringsmetho-
den zijn nauwgezet berekend om de diepe
bouwput te kunnen maken, zonder schade
aan belendingen te veroorzaken. Er is een
bouwput toegepast met stalen damwanden,
twee stempelramen en onderwaterbeton
(foto 6 en 7). De garage is gefundeerd op
476 palen.
Damwanden?De keuze voor stalen dam-
wanden is gemaakt vanwege de korte af-
stand tot de belendingen. Door een dubbel
stempelraam en onderwaterbeton toe te
passen, konden de vervormingen van de
damwanden worden beperkt. Op basis van
de berekening van toelaatbare vervormin-
gen van de fundatie van het Riffellokaal/
Molengebouw, is getoetst op maximaal
4 Parkeergarage gereed. Foto: Corentin Haubruge
5 Daktuin bovenop de kelder. Uitzicht vanuit Singeltoren DUWO-gebouwen en Riffellokaal/Molengebouw (rechts).
Foto: De Meelfabriek
Een drielaagse
parkeergarage
met onderwater-
beton bleek uit
kostenoverwe-
gingen de beste
keuze: ? 40.000 ,-
per plek
4
5
CEMENT 5 2025 ?9
7
6
6 Bouwput onder water
7 Bouwput met twee stempelramen
65 mm verplaatsing van de damwanden.
Aan de zijde van de DUWO-woningen was de
vervorming niet maatgevend: circa 30 mm.
Aan de DUWO-zijde zijn de damwan-
den aangebracht voordat de DUWO-wonin-
gen (gefaseerd) zijn gebouwd. Onder de
DUWO-woningen bevindt zich een enkel-
laagse ondergrondse garage (fig. 8). Er is een
doorgang gecreëerd op -1-niveau tussen de
diepe garage en de DUWO-kelder.
De damwanden in de parkeergarage
zijn in het zicht gebleven. Voor de water-
dichting zijn de damwandsloten volledig
afgelast en er zijn stalen strips aan de dam-
10?CEMENT?5 2025
Hoogten tov. N AP
Inheiniv eau
bk. OWB9.45 -
Hart 1 stem pelraam1.00 -
1 Ontgravings niveau2.00 -
e
20.00lg.[m]
0.10 - bk. Damwan d
Stalen damwand T ype:AZ26-700 (o.g .)
2 Ontgravings niveau5.60 -
e
11.15 -
10.65 -ok. OWB
Hart 2 s tempelraam4.60 -
e
e
Kelde r Blok A
wand gelast, die in de vloerrand zijn gestort
(fig. 9). De put is ontgraven met behulp van
een traverse op pontons.
Vloeren?De onderste constructieve kelder-
vloer (-3) is in het werk gestort. Er is een
afstand van 700 mm tussen bovenkant on-
derwaterbeton en onderkant keldervloer
aanwezig (fig. 10 en 11). In deze ruimte zijn de
poeren gemaakt en tussen de poeren is zand
aangebracht, waardoor de keldervloer op
zand kon worden gestort, dus zonder bekis
-
ting. De verdiepingsvloeren van de parkeer-
garage (-1 en -2) zijn, omwille van de eenvoud
en kosten, uitgevoerd met breedplaatvloeren
(250 mm dik) en verdikte betonstroken
Er is een afstand
van 700 mm
tussen bovenkant
onderwaterbeton
en onderkant
keldervloer
aanwezig
8 Doorsnede van de aansluiting van de damwand tegen een van de twee DUWO-gebouwen
9 Wapeningsdetails van de koppeling van onderste keldervloer (-3) met damwanden
8
9
CEMENT 5 2025 ?11
Begane grond
-250
Kelder -1
-3550
Kelder -2
-6300
Kelder -3
-9050
Fundering
-10250
A B C D E F G
Kelder 00 = NAP
-700
3950 8050 8000 8000 4125 5775
37900
450 2850 2750 2750 1200
1 : 100
Doorsnede PF
wijziging
B.
wijzigingB.
8000 8000 4125 57758000 8000 4125 5775
TOREN
10 Doorsnede kelder
11 Detail van de poeren tussen onderwaterbeton en keldervloer.
11
10
12?CEMENT?5 2025
met breedplaten (1200 × 400 mm
2
). Deze stro-
ken zijn opgelegd op prefab betonkolommen.
Het bovendek (0) is vanwege de dak-
tuinbelasting dikker gemaakt (350 mm
breedplaat) met breedplaat betonstroken
van 1500 × 550 mm
2
. De betonkolommen
staan op stramienmaten van 8,05 x 8,0 m
2
.
Onderwaterbeton?Het onderwaterbeton is
ontworpen op basis van CUR-Aanbeveling 77
('Rekenregels voor ongewapende Onderwa-
terbetonvloeren'). Aanvankelijk met een
handberekening, daarna is de doorsnede
definitief gecontroleerd door een moot van
de vloer in het eindige-elementenpakket
SCIA te berekenen. De gerekende opwaartse
waterdruk is 90 kN/m
2
(karakteristiek),
exclusief 20 kN/m
2
zwelbelasting. Aan de
bovenzijde is een tolerantie in het onderwa-
terbeton gerekend van + en ? 75 mm. Aan de
onderzijde is + en ? 150 mm gerekend.
Aanvankelijk is de fundering ontwor-
pen met een combinatie van 295 Gewi-ankers
en 231 Fundex-combinatiepalen. Er is daar
-
bij veel aandacht besteed aan de bepaling
van de stijfheid van de Gewi-ankers, die rond
100 MN/m lag. Het stijfheidsverschil tussen
beide paalsystemen bleek bij een second
opinion op de geotechnische paalberekening
echter groter dan aanvankelijk was aangeno
-
men. De Fundexpalen hebben een 3× zo hoge
stijfheid (circa 300 MN/m), waardoor de Gewi-
ankers relatief weinig kracht naar zich toe
zouden trekken en alsnog veel Fundexpalen
nodig zouden zijn. Er zijn configuraties onder-
zocht met 8 Gewi-ankers en 2 Fundexpalen
per veld, en configuraties met 6 Gewi-ankers
en 4 Fundexpalen. Deze oplossingen bleken
volgens de aannemer duurder dan een oplos
-
sing met alleen Fundexpalen.
Uiteindelijk is de fundering gemaakt
met 476 Fundex-groutinjectie combinatiepa
-
len Ø590 mm met een achthoekige prefab
betonkern (Octicon, doorsnede 365 mm). De
palen hebben een drukcapaciteit van 2.500 kN
en een trekcapaciteit van 950 kN. Het paal
-
puntniveau is NAP -31 a -33,5 m. De palen
zijn met DEMU-ankers voorzien van schotel
-
verankeringsplaten verankerd in de con-
structieve betonvloer. De verankering van de
palen in het onderwaterbeton wordt door de
ribbels in de paalkop verzorgd (fig. 12).
12 Detail van de aansluiting van palen op onderwaterbeton en keldervloer
13 3D-model Singeltoren
12
13
CEMENT 5 2025 ?13
wandsparing 10wandsparing 1320 x 2850
x 2360
wandsparing 1045 x 2475
vloer draagt op de wanden
vloer draagt niet op de
wanden
wanden zijn horizontaal
gekoppeld
vloer draagt op de
kolommen
Afstand waarover de vloer
kan kantelen om verlenging
en verkorting door
temperatuursverschillen op
te vangen.
14 Werklijnen van de stabiliteitverbanden.
15 Nabij de dragende binnenwanden zijn de buitenconstructies verticaal los gehouden om uitzetting en krimp door
temperatuurverschillen tussen binnen en buiten op te kunnen vangen
14
15
14?CEMENT?5 2025
Singeltoren
Boven de parkeergarage is de Singeltoren
gebouwd, een woongebouw van circa 45 m
hoog en 13 bouwlagen (33 appartementen en
2 penthouses) (fig. 13). Het ontwerpuitgangs-
punt was om woonplattegronden te creëren
zonder dragende structuur erin en de gevel
dragend uit te voeren. Zo ontstond een vrij
indeelbare vloer van 8,6 × 12,0 m
2
, waarin
meerdere woningindelingen kunnen worden
gemaakt (fig. 14).
De vloeren en wanden zijn vanwege
de benodigde koppelingen met kolommen,
balkons en vanwege de vele in te storten in-
stallaties in het werk gestort, de kolommen
zijn uitgevoerd in prefab beton.
Stabiliteit?De Singeltoren wordt gestabili-
seerd door een combinatie van binnenwan-
den en de liftkern (fig. 14). De twee binnen-
wanden zorgen voor stijfheid in beide
orthogonale richtingen, waarbij het systeem
kan roteren om het kruispunt van de werk-
lijn van deze wanden. De werklijn van de
betonkern kruist hier niet mee en daardoor
voorkomt de betonkern rotatie.
Gevelkolommen?De gevelkolommen die
nabij de dragende wanden staan, zijn niet
dragend uitgevoerd (fig. 15). Dit om thermi-
sche spanningen door uitzettingsverschillen
tussen de binnengelegen vloer en de buiten-
gelegen gevelconstructies, zoals de kolom-
men en balkons, te voorkomen. Door toe-
passing van een stalen plaat met slobgaten
en een holle achterruimte ('bakje'), die is
verankerd in de vloerrand, zijn translaties
in meerdere richtingen mogelijk (zie ook
16 Dragende buitengevelkolommen die met isokorven de vloer dragen. Foto: AMMO Amber Meij
17 Speciale aandacht is besteed aan de detaillering van de prefab schoonbetongevel. Foto: Corentin Haubruge
17
16
De gevelkolom-
men nabij
de dragende
wanden zijn
niet dragend
uitgevoerd
CEMENT 5 2025 ?15
18 Overzicht van de overdrachtsconstructie (rood) voor de Singeltoren op de parkeergarage
eerste artikel over de Meelfabriek 'Puzzelen
met bestaande constructies').
Er is veel aandacht besteed om de
dragende gevelkolommen zo slank mogelijk
te maken. Ze zijn aanvankelijk ontworpen
met een breedte van 220 mm en verankerd
met stalen consoles aan de achterliggende
vloer (foto 16). Dit is, om kosten te besparen,
gewijzigd naar isokorfkoppelingen. Gevolg
was dat de kolommen 250 mm breed en
370 mm diep moesten worden, bij sterkte-
klasse C55/67. Nog steeds heel slank voor een
bijna 50 m hoog gebouw.
Deze kolommen zijn beeldbepalend
(foto 1 en 17). De architect heeft de gevel zo
ontworpen dat de verticale geleding wordt
benadrukt en de ramen van vloer tot vloer
kunnen doorlopen. De kolommen zijn over
twee verdiepingen uit één stuk gemaakt en
per twee verdiepingen is er een horizontale
gevelband gemaakt. Ook deze is uitgevoerd
in prefab beton en met isokorven aan de
vloerranden bevestigd. Het schoonbeton is
strak afgewerkt en voorzien van 3% titaan-
dioxide om het licht van kleur te maken.
Tevens zal het hierdoor minder vervuilen.
18
Overdrachtsconstructie ?De Singeltoren is
gefundeerd op de parkeergarage. Om de
krachten uit de toren te spreiden in de onder-
liggende constructie van de parkeergarage,
is een overdrachtsconstructie gemaakt met
in het werk gestorte betonbalken van 1,0 m
dik (fig. 18).
30 jaar voorbereiding
Al vanaf 2015 wordt er door het ontwerp- en
bouwteam gewerkt aan dit complexe project.
Niet te vergeten dat eigenaar/ontwikkelaar
Ab van der Wiel daarvoor al bijna 30 jaar
voorbereiding van alle processen had getrof-
fen. Dit geeft aan wat erbij komt kijken om
waardevol cultuurhistorisch erfgoed te
transformeren. Naar verwachting worden
de laatste bouwwerkzaamheden in 2026
afgerond.
In een volgend artikel wordt ingegaan
op de projecten van fase 2.?
16?CEMENT?5 2025
In het kort
- In fase 1 van het project De Meelfabriek zijn de parkeergarage en de Singeltoren gebouwd
- Een drielaagse parkeergarage met onderwaterbeton bleek uit kostenoverwegingen de beste keuze: € 40.000,- per plek
- Alle constructies en uitvoeringsmethoden voor de bouwput zijn nauwgezet berekend om schade aan belendingen te voorkomen
- Er is een afstand van 700 mm tussen bovenkant onderwaterbeton en onderkant keldervloer aanwezig
- De fundering van de parkeergarage is gemaakt met 476 Fundex-combinatiepalen met groutinjectie (Ø590 mm) met een prefab betonkern (365 mm)
- De Singeltoren wordt gestabiliseerd door een combinatie van binnenwanden en de liftkern
- De gevelkolommen zijn zo ontworpen dat de verticale geleding wordt benadrukt
- De gevelkolommen nabij de dragende wanden zijn niet dragend uitgevoerd
- Het schoonwerk beton is voorzien van 3% titaandioxide voor een lichte kleur en minder vervuiling
Projectgegevens
Project: De Meelfabriek
Architect: Studio Akkerhuis, Parijs
Ontwerp masterplan: Peter Zumthor
Constructeur: Pieters
Aannemer: Van der Wiel Bouw
Aannemer parkeergarage: Van Hattum en Blankevoort
Betonwerk: Hendriks/Van Muijen Betonbouw en HCI Betonindustrie (prefab)
Bouwfysica en brand: LPB Sight
Installaties: Burg installatietechniek
Foto 1. De nieuw gebouwde Singeltoren. Foto: Corentin Haubruge
In het nieuwe plan wordt De Meelfabriek, dat ligt aan de centrumzijde van de historische singel in Leiden, een knooppunt voor wonen, werken, hotel, spa, horeca en kunst en cultuur. Het bestaande Meelfabriekcomplex kent een groot aantal gebouwen (fig. 3). Een deel daarvan wordt getransformeerd, waarbij de bestaande constructies rigoureus worden aangepakt om nieuwe functies mogelijk te maken. Een klein deel van de bestaande gebouwen is gesloopt, onder meer om vrije zichtlijnen te creëren. Ook worden er diverse nieuwe gebouwen gemaakt: een drielaagse ondergrondse parkeergarage, een zwembad en nieuwe woongebouwen waaronder twee nieuwe woontorens, de Singeltoren en de Silotoren.
Dit artikel, het tweede van een serie van drie, gaat over de nieuwbouw in fase 1: de parkeergarage en de Singeltoren (fig. 3). De transformatie van de oude gebouwen is beschreven in het eerste artikel ‘Puzzelen met bestaande constructies’ in Cement 2025/3. In het derde artikel worden het bestaande silogebouw, de nieuwe silotoren (bovenbouw) en het zwembad beschreven. Deze onderdelen zijn nog in voorbereiding; dit artikel verschijnt dan ook pas in 2026.
Figuur 3. Plattegrond van het Meelfabriekcomplex. In dit artikel worden de parkeergarage en de Singeltoren beschreven
Foto 2. Transformatie Meelfabriek: (a) < 2020 (foto: Corné Houwaard);
(b): 2025 (foto: Corentin Haubruge);
(c): > 2027 (foto: De Meelfabriek)
Een drielaagse parkeergarage met onderwaterbeton bleek uit kostenoverwegingen de beste keuze: € 40.000,- per plek
Parkeergarage
Bij de start van het project is begonnen met het onderzoeken van de beste oplossing voor het maken van 300 parkeerplaatsen, op of onder het terrein. Er zijn diverse oplossingen beschouwd: bovengronds, ondergronds, dieper of minder diep. Uit de kostenramingen van de verschillende scenario’s bleek een drielaagse ondergrondse garage het meest efficiënt. Deze oplossing, met toepassing van onderwaterbeton, leverde 270 parkeerplaatsen op van circa € 40.000,- per parkeerplaats (prijspeil 2018). Deze had de voorkeur boven een variant met een tweelaagse ondergrondse garage, zonder onderwaterbeton. Die variant leverde 170 parkeerplaatsen op, van circa € 45.000,- per parkeerplaats.
Op de parkeergarage bevindt zich een daktuin (foto 5) en bovenop de kelder staat de nieuwe Singeltoren.
Foto 4. Parkeergarage gereed. Foto: Corentin Haubruge
Foto 5. Daktuin bovenop de kelder. Uitzicht vanuit Singeltoren DUWO-gebouwen en Riffellokaal/Molengebouw (rechts). Foto: De Meelfabriek
Bouwput
De kelder ligt ingesloten tussen het bestaande Riffellokaal/Molengebouw en de twee nieuwe DUWO-gebouwen. Het Riffellokaal/Molengebouw is gefundeerd op houten palen. Het maken van een ruim 11 m diepe bouwput voor de parkeergarage, op 5 m naast een rijksmonument op houten palen, is geen sinecure.
Alle constructies en uitvoeringsmethoden zijn nauwgezet berekend om de diepe bouwput te kunnen maken, zonder schade aan belendingen te veroorzaken. Er is een bouwput toegepast met stalen damwanden, twee stempelramen en onderwaterbeton (foto 6 en 7). De garage is gefundeerd op 476 palen.
Foto 6. Bouwput onder water
Foto 7. Bouwput met twee stempelramen
Damwanden
De keuze voor stalen damwanden is gemaakt vanwege de korte afstand tot de belendingen. Door een dubbel stempelraam en onderwaterbeton toe te passen, konden de vervormingen van de damwanden worden beperkt. Op basis van de berekening van toelaatbare vervormingen van de fundatie van het Riffellokaal/Molengebouw, is getoetst op maximaal 65 mm verplaatsing van de damwanden. Aan de zijde van de DUWO-woningen was de vervorming niet maatgevend: circa 30 mm.
Aan de DUWO-zijde zijn de damwanden aangebracht voordat de DUWO-woningen (gefaseerd) zijn gebouwd. Onder de DUWO-woningen bevindt zich een enkellaagse ondergrondse garage (fig. 8). Er is een doorgang gecreëerd op -1-niveau tussen de diepe garage en de DUWO-kelder.
De damwanden in de parkeergarage zijn in het zicht gebleven. Voor de waterdichting zijn de damwandsloten volledig afgelast en er zijn stalen strips aan de damwand gelast, die in de vloerrand zijn gestort (fig. 9). De put is ontgraven met behulp van een traverse op pontons.
Figuur 8. Doorsnede van de aansluiting van de damwand tegen een van de twee DUWO-gebouwen
Figuur 9. Wapeningsdetails van de koppeling van onderste keldervloer (-3) met damwanden
Er is een afstand van 700 mm tussen bovenkant onderwaterbeton en onderkant keldervloer aanwezig
Vloeren
De onderste constructieve keldervloer (-3) is in het werk gestort. Er is een afstand van 700 mm tussen bovenkant onderwaterbeton en onderkant keldervloer aanwezig (fig. 10 en 11). In deze ruimte zijn de poeren gemaakt en tussen de poeren is zand aangebracht, waardoor de keldervloer op zand kon worden gestort, dus zonder bekisting. De verdiepingsvloeren van de parkeergarage (-1 en -2) zijn, omwille van de eenvoud en kosten, uitgevoerd met breedplaatvloeren (250 mm dik) en verdikte betonstroken met breedplaten (1200 × 400 mm2). Deze stroken zijn opgelegd op prefab betonkolommen.
Het bovendek (0) is vanwege de daktuinbelasting dikker gemaakt (350 mm breedplaat) met breedplaat betonstroken van 1500 × 550 mm2. De betonkolommen staan op stramienmaten van 8,05 x 8,0 m2.
Figuur 10. Doorsnede kelder
Figuur 11. Detail van de poeren tussen onderwaterbeton en keldervloer
Onderwaterbeton
Het onderwaterbeton is ontworpen op basis van CUR-Aanbeveling 77 (‘Rekenregels voor ongewapende Onderwaterbetonvloeren’). Aanvankelijk met een handberekening, daarna is de doorsnede definitief gecontroleerd door een moot van de vloer in het eindige-elementenpakket SCIA te berekenen. De gerekende opwaartse waterdruk is 90 kN/m2 (karakteristiek), exclusief 20 kN/m2 zwelbelasting. Aan de bovenzijde is een tolerantie in het onderwaterbeton gerekend van + en – 75 mm. Aan de onderzijde is + en – 150 mm gerekend.
Aanvankelijk is de fundering ontworpen met een combinatie van 295 Gewi-ankers en 231 Fundex-combinatiepalen. Er is daarbij veel aandacht besteed aan de bepaling van de stijfheid van de Gewi-ankers, die rond 100 MN/m lag. Het stijfheidsverschil tussen beide paalsystemen bleek bij een second opinion op de geotechnische paalberekening echter groter dan aanvankelijk was aangenomen. De Fundexpalen hebben een 3× zo hoge stijfheid (circa 300 MN/m), waardoor de Gewi-ankers relatief weinig kracht naar zich toe zouden trekken en alsnog veel Fundexpalen nodig zouden zijn. Er zijn configuraties onderzocht met 8 Gewi-ankers en 2 Fundexpalen per veld, en configuraties met 6 Gewi-ankers en 4 Fundexpalen. Deze oplossingen bleken volgens de aannemer duurder dan een oplossing met alleen Fundexpalen.
Uiteindelijk is de fundering gemaakt met 476 Fundex-groutinjectie combinatiepalen Ø590 mm met een achthoekige prefab betonkern (Octicon, doorsnede 365 mm). De palen hebben een drukcapaciteit van 2.500 kN en een trekcapaciteit van 950 kN. Het paalpuntniveau is NAP -31 a -33,5 m. De palen zijn met DEMU-ankers voorzien van schotelverankeringsplaten verankerd in de constructieve betonvloer. De verankering van de palen in het onderwaterbeton wordt door de ribbels in de paalkop verzorgd (fig. 12).
Figuur 12. Detail van de aansluiting van palen op onderwaterbeton en keldervloer
Singeltoren
Boven de parkeergarage is de Singeltoren gebouwd, een woongebouw van circa 45 m hoog en 13 bouwlagen (33 appartementen en 2 penthouses) (fig. 13). Het ontwerpuitgangspunt was om woonplattegronden te creëren zonder dragende structuur erin en de gevel dragend uit te voeren. Zo ontstond een vrij indeelbare vloer van 8,6 × 12,0 m2, waarin meerdere woningindelingen kunnen worden gemaakt (fig. 14).
De vloeren en wanden zijn vanwege de benodigde koppelingen met kolommen, balkons en vanwege de vele in te storten installaties in het werk gestort, de kolommen zijn uitgevoerd in prefab beton.
Figuur 13. 3D-model Singeltoren
Figuur 14. Werklijnen van de stabiliteitverbanden
Stabiliteit
De Singeltoren wordt gestabiliseerd door een combinatie van binnenwanden en de liftkern (fig. 14). De twee binnenwanden zorgen voor stijfheid in beide orthogonale richtingen, waarbij het systeem kan roteren om het kruispunt van de werklijn van deze wanden. De werklijn van de betonkern kruist hier niet mee en daardoor voorkomt de betonkern rotatie.
De gevelkolommen nabij de dragende wanden zijn niet-dragend uitgevoerd
Gevelkolommen
De gevelkolommen die nabij de dragende wanden staan, zijn niet-dragend uitgevoerd (fig. 15). Dit om thermische spanningen door uitzettingsverschillen tussen de binnengelegen vloer en de buitengelegen gevelconstructies, zoals de kolommen en balkons, te voorkomen. Door toepassing van een stalen plaat met slobgaten en een holle achterruimte (‘bakje’), die is verankerd in de vloerrand, zijn translaties in meerdere richtingen mogelijk (zie ook eerste artikel over de Meelfabriek ‘Puzzelen met bestaande constructies’).
Er is veel aandacht besteed om de dragende gevelkolommen zo slank mogelijk te maken. Ze zijn aanvankelijk ontworpen met een breedte van 220 mm en verankerd met stalen consoles aan de achterliggende vloer (foto 16). Dit is, om kosten te besparen, gewijzigd naar isokorfkoppelingen. Gevolg was dat de kolommen 250 mm breed en 370 mm diep moesten worden, bij sterkteklasse C55/67. Nog steeds heel slank voor een bijna 50 m hoog gebouw.
Deze kolommen zijn beeldbepalend (foto 1 en 17). De architect heeft de gevel zo ontworpen dat de verticale geleding wordt benadrukt en de ramen van vloer tot vloer kunnen doorlopen. De kolommen zijn over twee verdiepingen uit één stuk gemaakt en per twee verdiepingen is er een horizontale gevelband gemaakt. Ook deze is uitgevoerd in prefab beton en met isokorven aan de vloerranden bevestigd. Het schoonbeton is strak afgewerkt en voorzien van 3% titaandioxide om het licht van kleur te maken. Tevens zal het hierdoor minder vervuilen.
Figuur 15. Nabij de dragende binnenwanden zijn de buitenconstructies verticaal los gehouden om uitzetting en krimp door temperatuurverschillen tussen binnen en buiten op te kunnen vangen
Foto 16. Dragende buitengevelkolommen die met isokorven de vloer dragen. Foto: AMMO Amber Meij
Foto 17. Speciale aandacht is besteed aan de detaillering van de prefab schoonbetongevel. Foto: Corentin Haubruge
Overdrachtsconstructie
De Singeltoren is gefundeerd op de parkeergarage. Om de krachten uit de toren te spreiden in de onderliggende constructie van de parkeergarage, is een overdrachtsconstructie gemaakt met in het werk gestorte betonbalken van 1,0 m dik (fig. 18).
Figuur 18. Overzicht van de overdrachtsconstructie (rood) voor de Singeltoren op de parkeergarage
30 jaar voorbereiding
Al vanaf 2015 wordt er door het ontwerp- en bouwteam gewerkt aan dit complexe project. Niet te vergeten dat eigenaar/ontwikkelaar Ab van der Wiel daarvoor al bijna 30 jaar voorbereiding van alle processen had getroffen. Dit geeft aan wat erbij komt kijken om waardevol cultuurhistorisch erfgoed te transformeren. Naar verwachting worden de laatste bouwwerkzaamheden in 2026 afgerond.
In een volgend artikel wordt ingegaan op de projecten van fase 2.
Reacties