De Meelfabriek in Leiden ondergaat een grootschalige transformatie, waarbij een industrieel gebouwencomplex wordt herontwikkeld tot multifunctioneel woongebied. De oude monumentale gebouwen worden gerenoveerd en er komen nieuwe gebouwen bij. In dit eerste van drie artikelen wordt de constructieve beschouwing van de bestaande constructies en de transformatie naar nieuwe functies toegelicht.
1 In het voormalige Meelpakhuis worden loftappartementen gemaakt.
Foto: Corentin Haubruge
1
58?CEMENT?3 2025
De Meelfabriek in Leiden ondergaat een grootschalige
transformatie, waarbij een industrieel gebouwencomplex wordt
herontwikkeld tot multifunctioneel woongebied. De oude
monumentale gebouwen worden gerenoveerd en er komen
nieuwe gebouwen bij. In dit eerste van drie artikelen wordt de
constructieve beschouwing van de bestaande constructies en de
transformatie naar nieuwe functies toegelicht.
Puzzelen met
bestaande
constructies
Meelfabriek (1): Renovatie bestaande monumenten als
onderdeel transformatie industrieel gebouwencomplex
CEMENT 3 2025 ?59
auteur
De Meelfabriek ligt aan de cen-
trumzijde van de historische
singel in Leiden.
De fabriek werd opge-
richt in 1884 en moest in 1988 om financiële
redenen de deuren sluiten. In het 104-jarig
bestaan zijn er steeds nieuwe panden bijge-
bouwd. Het oudste nog bestaande pand is
het Ketelhuis uit 1894 en de laatste bouwde-
len zijn silo's, gebouwd in 1960. Na de slui-
ting kocht ontwikkelaar Ab van der Wiel het
complex en redde het daarmee van de
sloop, met als idee het cultuurhistorisch erf-
goed te behouden en te hergebruiken. In het
nieuwe plan wordt De Meelfabriek een
knooppunt voor wonen, werken, hotel, spa,
horeca en kunst en cultuur.
2 Overzicht gebouwdelen De Meelfabriek. Het silogebouw, het meelpakhuis en het Riffellokaal/Molengebouw zijn bestaande gebouwen,
de Singeltoren, Parkeergarage en het Duwo-gebouw zijn nieuwbouw
3 Plattegrond Meelfabriek-complex, gemarkeerd zijn in dit artikel behandelde gebouwen
IR. ROB DOOMEN RO
Partner / Adviseur
Constructies
Pieters
PROJECTGEGEVENS
project
De Meelfabriek
architect
Studio Akkerhuis, Parijs
ontwerp masterplan
Peter Zumthor
constructeur
Pieters
adviseur bouwfysica en
brand
LPB Sight
installaties
Burg installatietechniek
beton-, metselwerk- en
staalonderzoek
Nebest
geotechnisch adviseur
Geobest
onderzoek bestaande
palen
Wareco (tegenwoordig
Aveco De Bondt)
aannemer
Van der Wiel Bouw
betonwerk
Hendriks/Van Muijen
Betonbouw en HCI
Betonindustrie (prefab)
omvang
totaal 55.000 m² BVO
2
3
60?CEMENT?3 2025
Bestaande situatie
Het bestaande Meelfabriekcomplex kent een
groot aantal gebouwen (fig. 2). Geen gebouw
is hetzelfde: ze zijn in verschillende tijden
gebouwd, met verschillende bouwmateria-
len en systemen. Een groot deel van de ge-
bouwen wordt getransformeerd, waarbij
bestaande constructies rigoureus worden
aangepakt om nieuwe functies mogelijk te
maken. Een klein deel van de bestaande be-
bouwing is gesloopt, onder meer om vrije
zichtlijnen te creëren. En er zijn drie nieuwe
gebouwen gemaakt.
Dit artikel, het eerste van een drietal,
gaat over de reeds voltooide transformaties
(Silotoren, Meelpakhuis en het Riffellokaal/
Molengebouw, fig. 3). De nieuwbouw (Par-
keergarage en Singeltoren) wordt in het
tweede artikel behandeld. In het derde arti-
kel komen de gebouwen aan de orde waar
nu nog aan wordt gewerkt, het Silogebouw,
de Schoonmakerij en het oude Ketelhuis.
Controle bestaande constructies
Bij herbestemmingen en onderzoek naar de
constructieve mogelijkheden van een ge-
bouw is de aanwezigheid van archiefteke-
ningen essentieel. Er zijn honderden ar-
chieftekeningen doorzocht, die goed zijn
bewaard in de oude kluis van de Meelfa-
briek. Ook is het gemeentearchief onder-
zocht, maar daar was veel minder beschik-
baar. Dit toont aan hoe belangrijk goede
archivering door gebouweigenaars is.
Als er, zoals bij de Meelfabriek, goede
archiefgegevens zijn, dan is het vooral zaak
om de staat van de constructie te controle-
ren. Gestart is met een visuele inspectie.
Hoewel grote problemen niet altijd goed zijn
af te lezen, kun je met een eerste inspectie
vaststellen welke materiaalonderzoeken
nodig zijn.
De funderingen zijn in eerste instantie
gecontroleerd met lintvoegmetingen en wa-
terpassing. Daarmee kon worden geconsta-
teerd waar in het pand de grootste zettingen
zijn geweest en waar de grootste scheefstand
is ontstaan.
Een groot deel van de bestaande ge-
bouwen is op houten palen gefundeerd en
die zijn grotendeels hergebruikt. Op diverse
locaties zijn de palen vrijgegraven en geïn-
specteerd om te zien of er houtrot was opge-
treden, hoeveel draagkracht ze nog hebben
en hoelang ze nog meegaan (foto 4). Bij alle
gebouwen waren de palen nog goed, behalve
bij het uit de 19e eeuw stammende Ketel-
huis. Daar waren de palen rot en wordt de
complete fundering hersteld met nieuwe
palen.
De betonconstructies zijn op basis
van de visuele inspectie nader onderzocht
(foto 5). Ter plaatse van schades zijn beton-
kernen geboord en zijn diverse metingen
Op de onderste
560 mm van de
bestaande
betonnen funde-
ringsplaat is een
nieuwe vloer
van 1000 mm
aangebracht
4 Onderzoek naar de bestaande paalfunderingen onder de gebouwen
5 Visuele inspectie liet meerdere type betonschade zien. Op diverse plekken heeft carbonatatie geleid tot corrosie van wapening en
afspatten van beton
4 5
CEMENT 3 2025 ?61
gedaan. Van de betonkernen is gemeten wat
de carbonatatiediepte is. En er zijn kernen
gedrukt om de druksterkte vast te stellen.
Met elektromagnetisch apparatuur werd de
positie en diepteligging van wapening geme-
ten tot een diepte van circa 100 mm. Met een
betonradar kon dieper, tot circa 300 mm
worden gemeten. Ook zijn potentiaalmetin-
gen aan het beton uitgevoerd, waarmee (na
ijking door lokaal open te hakken, foto 6)
een inschatting is gemaakt van de te ver-
wachten corrosie in de toekomst.
Silotoren
In 1960 is de Silotoren gebouwd. Deze stond
gefundeerd op circa 300 betonpalen met
daarop een 1,56 m dikke betonnen funde
-
ringsplaat. Daarop zijn betonnen silo's ge-
bouwd. Deze hadden hele kleine afmetingen:
de silocellen waren circa 2
× 4 m² groot. Her-
gebruik van de silo's was daarom niet reëel,
maar hergebruik van de bestaande fundering
wel. Daarom is het gebouw vanaf de begane
grond gesloopt en zijn de funderingspalen en
een deel van de funderingsplaat gehandhaafd
en hergebruikt. In samenwerking met de
geotechnisch adviseur is berekend wat de
bestaande fundering kon dragen.
Hergebruik van de bestaande palen
was een mooie kans, maar tegelijkertijd ook
7
6
6 Meten van de mate van corrosie van de wapening
7 De nieuwe Silotoren. Foto: Corentin Haubruge
een noodzaak. Het verwijderen van de be-
staande palen was moeilijk voor elkaar te
krijgen en zou geotechnisch gezien veel
ontspanning in draagkrachtige ondergrond
geven. En het maken van nieuwe palen
tussen het zeer dichte palengrid zou com-
plex zijn en zwaar heiwerk/schroefwerk
opleveren.
Nieuwe bovenbouw?Op de fundering is een
nieuw woongebouw van 14 bouwlagen ge-
plaatst (foto 7). Dit heeft een betonnen kern
met daaromheen dragende prefab betonko-
lommen buiten de gevels (fig. 11). De krach-
ten worden in de nieuwe situatie veel min-
der gespreid dan bij de oude silo's het geval
was. De bestaande betonnen funderings-
plaat was niet berekend op het spreiden van
de krachten uit de nieuwbouw. Daarom is
een nieuwe betonnen plaatfundering ge-
maakt, met voldoende wapening om de
krachten over bestaande palen te spreiden.
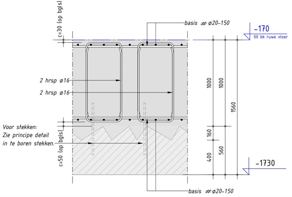
Nieuwe funderingsplaat?Om een dure
bouwkuip te voorkomen, is de onderste
560 mm van de bestaande betonnen plaat
van 1560 mm behouden (foto 8). Op deze wij-
ze bleven de paalankers verankerd en werd
het grondwater tegengehouden. De boven-
liggende 1000 mm is eraf gesloopt, door de
62?CEMENT?3 2025
maakt waarbij in de stijfheid van de funde-
ringsplaat en die van de palen is gevarieerd.
De nieuwe vloer is op sterkte berekend als
een 1000 mm dikke betonplaat; alleen het
nieuwe beton dus. Voor de paalreacties is
het echter ongunstig als het oude en het
nieuwe beton samenwerkt en de plaat zich
als een stijve, 1560 mm dikke plaat gedraagt.
In de controle van de paalbelastingen is
daarmee rekening gehouden, door een om-
hullende paalbelasting en plaatwapening te
bepalen.
8 Hergebruik van de bestaande fundering nadat de bovenste 1000 mm eraf is gesloopt
9 Het wapenen van de nieuwe vloer
Een uitdrukke-
lijke wens was
om het beton
van vloeren en
kolommen
zichtbaar te
houden
vloer over 1000 mm in te zagen in vlakken
en vervolgens de vlakken eruit te hakken.
Vervolgens is een nieuwe vloer van 1000 mm
aangebracht (foto 9).
Op enkele posities treden in de uiter-
ste grenstoestand trek en grote drukkrach-
ten op in de fundering. Daarom waren zes
nieuwe tubexpalen nodig. Deze zijn aange-
bracht door sparingen in de bestaande fun-
dering en gekoppeld aan de nieuwe vloer.
Voor de berekening van de funde-
ringsplaat is een gevoeligheidsanalyse ge-
8
9
CEMENT 3 2025 ?63
nieuwe plaat
bestaande plaat
Ten behoeve van extra stijfheid zijn de oude
en nieuwe vloer gekoppeld. Dit door h.o.h.
600 mm ankers in te boren en de vloer ruw
te hakken. Voor de vloerwapening zijn er
prefab balkvormige korven aangebracht, om
de dwarskrachtwapening veilig (arbotech
-
nisch) te kunnen monteren (fig. 10). Er is in
overleg met de betonbouwer een stappen
-
plan voor het leggen van de wapening be-
dacht, op basis waarvan een korventekening
is gemaakt en de zware vloerwapening arbo
-
technisch goed kon worden geplaatst.
Dragende kolommen?De nieuwe dragende
betonkolommen staan buiten de thermische
schil (fig. 11). De vloeren (binnen thermische
schil) zijn met isokorven opgehangen aan de
kolommen. Voor deze isokorven is in de
vloer-kolomkruising slechts weinig ruimte:
400 mm breedte en 300 mm hoogte. Hier
moeten forse krachten worden doorge-
voerd, waarvoor uitgebreide afstemming
met de leverancier van de isokorven (Schöck)
heeft plaatsgevonden om de juiste wape-
ningsconfiguratie te vinden (fig. 12 en 13).
Een aantal buitenkolommen grenzen
aan dragende binnenwanden. Hier ontstaat
op korte afstand een verschil in thermische
uitzetting. Door de buitenkolommen op deze
posities niet-dragend te maken en verticaal
schuivend uit te voeren, worden thermische
vervormingsverschillen toegelaten zonder
grote opgelegde momenten en dwarskrach-
ten. Dit is gerealiseerd met een detail met
een stalen plaat met holle achterruimte
('bakje'), die is verankerd in de vloerrand.
Met slobgaten in de stalen plaat is voor de
mogelijke translaties gezorgd.
Het Meelpakhuis
In het voormalige Meelpakhuis zijn loft
appartementen gemaakt (foto 1). Het pak
-
huis kende een zware functie; er lag veel
meel opgeslagen en er werd met zwaar ma
-
terieel gewerkt. Uit herberekening van het
bestaande betonskelet en de fundering bleek
dat op het bestaande gebouw drie nieuwe
verdiepingen konden worden gemaakt.
Omdat het hogere gebouw veel meer
wind vangt, is middenin het gebouw een
nieuwe stabiliteitskern gemaakt (fig. 20).
Onder deze kern zijn 25 nieuwe Tubex-grout-
injectiepalen geslagen.
Bestaande paalfundering?Van de bestaande
paalfundering met ruim 1200 vurenhouten
palen waren archieftekeningen beschikbaar.
Er zijn inspectieputten gegraven. Negen palen
zijn op houtrot gecontroleerd. In alle onder
-
zochte palen werd bacteriële aantasting
vastgesteld. Op basis van de analyse van hout-
monsters en de restdiameter van de paal-
koppen, is de kwaliteit van de palen echter
als ruim voldoende beoordeeld.
Op twee palen zijn proefbelastingen
uitgevoerd. Op basis van een maximale
10
10 Principe wapening funderingsplaat 64?CEMENT?3 2025
drukkracht in de nieuwe situatie van 140 kN,
zijn de palen beproefd tot 395 kN. Deze hoge
proefbelasting komt voort uit de te rekenen
veiligheidsfactor (hier vanwege beperkte
steekproef factor 1,51), de te rekenen nega-
tieve kleef in eindsituatie van 92 kN en de
optredende positieve kleefbelasting tijdens
de proeven van 92 kN. De testbelasting is
daardoor:
F
test;SLT;max
= 140 × 1,51 + 92 + 92 = 395 kN
De proefbelasting is in zeven stappen met 30
en 60 minuten interval aangebracht (fig. 14).
Zo kon de draagkracht worden getest en
aangetoond. Op basis van de proefbelasting
en een berekening van de optredende nega-
tieve kleef is een gemiddelde draagkracht
van de bestaande palen gevonden van 155 kN.
Het was bovendien belangrijk dat met
funderingsinspecties werd gecontroleerd of
de palen ook conform de archieftekeningen
waren uitgevoerd. Bij deze inspecties werd
geen afwijking van het palenplan aange-
troffen.
Bovenbouw?In het ontwerp van het nieuwe
loftgebouw is de bestaande metselwerkgevel
verwijderd om daglicht naar binnen te halen
(fig. 15). Bovendien zijn de vloeren rondom
verlengd om ruimte te maken voor balkons
(fig. 16) en zijn de gevelkolommen, die in de
gevel recht waren, weer aangevuld tot een
achthoek (fig. 17). Een uitdrukkelijke
11
11 Met oranje gemarkeerde niet-dragende kolommen om thermische vervormingsverschillen tussen binnen- en
buitenconstructies mogelijk te maken
CEMENT 3 2025 ?65
Bovenaanzicht
Doorsnede A-A
A A
I.h.w.g. vloer
Prefab kolom
Fvd = 480 kN
excentriciteit 200 mm
Mdv=Fvd * excentriciteit
Prefab kolom
I.h.w.g. vloer
Fhd1 = 100 kN
Dit is inclusief kniksteun en wind.
Fhd2 = 25 kN (kniksteun en wind)
Alle deze belastingen kunnen tegelijk optreden.
Fhd1, zie onder
300 mm
600 mm
Ook een opwaartse belasting
van 30 kN meenemen vanwe-
ge temperatuurbelasting.
400 mm
1e verdiepingsvloerniveau
excentriciteit 380 mm
Mdh= Fhd2 * excentriciteit
12 Opgave van krachten in alle richtingen op de isokorven, bij de aansluiting van de dragende kolommen
13 Uitwerking van het isokorfdetail bij de aansluiting van de dragende kolommen
12
13
66?CEMENT?3 2025
14
14 Tijd-krachtdiagram van de proefbelasting van een van de palen
15 Gestript Meelpakhuis. Foto: Corentin Haubruge
15
CEMENT 3 2025 ?67
Verdieping 2
7,75 m
E - Verdieping 2
7,95 m
Beton nieuw / afschot 75-100 mm
Bestaand dragende vloer, beton 190 mm
1901008020
Veiligheidsglas ballustrade
Thermische Isolatie 80 mm
Betonnenvloer nieuw
Bestaand dragende vloer, beton 190 mm
Vloerwarming / Koudebrug
Isolatie 35 mm
Vloer bedekking 20 mm
190100356520
BALKON
Beton / ventilatie 100 mm
Afdekvloer 20 mm ntb
Afwerkvloer met vloerwarming 65 mm
Continu waterdicht membraan afschot 1.5 %
Isolatie / Gelokaliseerde gaten
75 190
265
Betonnenvloer bestaand
Betonnenvloer nieuw
HWA-buis
geïntegreerd en nieuw deel of kolom
Vloerbedekking 20 mm
190
99
1
100
0
Perforatie voor koudebrug
onderbreking.
Nieuwe betonvloer 100 mm. Tevens van binnen naar buiten
doorlopen in verband met doorlopende krachten en wapening.
BALKON
(buiten)
APPARTEMENT
(binnen)
Kolom
(bestaand)
Kolom
(nieuw)
Bestaande betonvloer.
Bovenkant ruwhakken.
Indien nodig deuvels
toepassen.
vloerverwarming bij koude-
brug
17
18
16 Schema van de nieuwe plattegronden. Met uitbreiding rondom aan het gebouw (rood) nadat de metselwerk gevels zijn verwijderd.
In het midden is de stabiliteitskern met rond trappenhuis zichtbaar
17 De oude kolommen waren in de gevel afgesneden en zijn in de nieuwe situatie weer aangestort tot achthoeksvormen
18 Principedetail binnen-buitenvloer met nieuwe betonvloer, perforatie en vloerverwarming om koudebrug te voorkomen
16
68?CEMENT?3 2025
wens van ontwikkelaar en architect was om
het beton van vloeren en kolommen zicht-
baar te houden. Dit leidde tot een complex
detail, waarbij de gevel naar achter ligt en de
vloeren van binnen naar buiten doorlopen
(fig. 18).
Samen met de bouwfysisch adviseur
is hiervoor een oplossing gevonden. Geïnspi-
reerd door de Zollverein School in Essen
(architect Sanaa) is onderzocht of met ver-
warmingsleidingen het temperatuursver-
schil in de vloeren kon worden beperkt om
condens- en schimmelvorming te voorko-
men. Waar in de Zollverein de warmte een
restproduct is van de Kolenmijn, is bij de
Meelfabriek de energie niet gratis en was de
wens om het energieverbruik met isolatie te
reduceren. Daarom zijn de vloeren lokaal
voorzien van sparingen (perforaties), die
zijn gevuld met isolatie (fig. 18). Door de be-
staande 180 mm dikke vloeren een nieuwe
druklaag te geven kon de vloer waar nodig
worden versterkt en konden de uitkragin-
gen in de vloeren worden gemaakt.
Van de bestaande vloeren zijn geen
wapeningsarchieftekeningen gevonden. In
samenwerking met Nebest is de vloerwape-
ning gescand. De vloervelden zijn circa
19
19 Output van de wapeningsscans waarin zowel onderwapening als bovenwapening is gemeten. De scans zijn geijkt door lokaal de
vloer open te hakken en wapening op te meten
20 Doorsnede Meelpakhuis
20
CEMENT 3 2025 ?69
21
22
21 Het oorspronkelijke interieur van het Meelmagazijn, met prachtig zichtwerk beton dat door dichte metselwerkgevels
aan het zicht onttrokken was. Foto: Suzanne Baars
22 Cirkelvormige ruimte in het midden van het gebouw voor het ronde trappenhuis. Foto: Corentin Haubruge
5 × 5 m² groot en bleken diagonaal gewapend
(fig. 19).
Vanwege de vroegere zware belasting
was de capaciteit van de vloeren relatief
hoog. Op basis van de beschikbare informa-
tie konden alle controleberekeningen wor-
den gemaakt. De te maken sparingen, uit-
kragingen en de druklaag zijn zodanig
ontworpen dat de onderwapening in de
bestaande vloer nog voldeed.
Alleen de dakvloer was niet sterk ge-
noeg. Uit de wapeningsscans bleek dat de
vloer door corrosie van deze wapening on-
voldoende veilig was. De vloer is in de nieu-
we situatie opgehangen aan de nieuwe con-
structies van de optopping (zie hierna).
Optopping?Bovenop het betonnen casco is
een lichte stalen constructie toegevoegd
voor drie nieuwe verdiepingen met staal-
plaatbetonvloeren (fig. 20). De nieuwe op-
bouw ligt iets terug van de bestaande gevels.
Deze setback wordt gedragen met stalen lig-
gers boven het bestaande dak. Deze liggers
dragen de nieuwe verdiepingen en de terug-
liggende gevels. Zoals eerder aangegeven is
de oude dakvloer aan deze staalconstructie
opgehangen. De optopping wordt gestabili-
seerd door de betonkernen die vanuit het
bestaande gebouw doorlopen.
70?CEMENT?3 2025
23 Rond trappenhuis als verwijzing naar de oude meelglijbanen. Foto: Corentin Haubruge
24 De oude meelglijbanen. Foto: Suzanne Baars
25 Het voormalige Molengebouw en Riffellokaal is een nieuw loftgebouw geworden voor 30 lofts. Foto: Corentin Haubruge
23 24
25
CEMENT 3 2025 ?71
26
26 Bestaande constructie Molengebouw met stalen spanten en houten vloeren, die zijn overlaagd met beton
Door het lage gewicht van de drie vloeren
was versterking van de bestaande houten
palen niet nodig.
Kolommen en trappenhuis?De bestaande
constructie is fotogeniek, al het beton blijft
in het zicht. Opvallend zijn onder andere de
achthoekige kolommen, voorzien van pons-
koppen (foto 21). Een bijzonder element is
ook het ronde trappenhuis in het midden
van het gebouw (foto 22). Er zijn cirkelvor-
mige trappen gemaakt, ter referentie aan de
meelglijbanen in de oude fabriek (foto 23).
Molengebouw en Riffellokaal
In 2020 zijn het voormalige Molengebouw en
Riffellokaal, die samen één gebouw vormen,
getransformeerd tot woongebouw met 30
woonlofts (foto 25). Het Riffellokaal is ge-
bouwd in 1931 en het Molengebouw in 1947.
Voorheen stond dit rijksmonument vol
machines om het graan voor de Meelfabriek
te verwerken.
Bestaande constructie?De bestaande con-
structie van respectievelijk acht en zeven
bouwlagen bestaat uit momentvaste stalen
portalen, houten vloeren en metselwerk ge-
vels (foto 26). De portalen staan h.o.h. 5 m.
Daartussen liggen secundaire stalen liggers
h.o.h 2,5 m. Tussen die secundaire liggers
overspant de houten vloer van 60 mm dikke
platte balken. Het gebouw is gefundeerd op
houten palen (Riffellokaal) en op betonnen
palen (Molengebouw).
Voor de transformatie zijn de houten
vloeren voorzien van een 180 mm betonnen
druklaag, met daarop een zwevende dek-
vloer. Hiermee verbetert de geluidskwaliteit,
is de vloer brandwerend en is er een tweede
draagweg gecreëerd. De staalconstructies
zijn brandwerend gecoat. Zowel de staalcon-
structies als de houten vloeren zijn zichtbaar
gebleven in de lofts.
Optopping?Op het gebouw is een eenlaagse
(Riffellokaal) en tweelaagse (Molengebouw)
optopping gemaakt (fig. 27). De optopping
heeft een staalconstructie met staalplaatbe-
tonvloeren en een houten balklaag voor het
dak. In de optopping is een groot penthouse
met dakterras gemaakt.
Vanwege de grotere hoogte door de
optopping was een versterking voor stabili-
teit nodig. De bestaande staalconstructie is
volledig doorberekend. Hieruit bleek dat het
in de oorspronkelijke toestand al erg veel
vervormde bij wind. Te veel voor een com-
Bij het
Riffellokaal/
Molengebouw
zijn ter plaatse
van beoogde
binnenwanden
diagonale
verbanden toe-
gevoegd
72?CEMENT?3 2025
27
27 In de 3D-overzichten zijn de oude (wit) en nieuwe (blauw) constructies goed zichtbaar. Met extra kruizen en diagonalen voor stabiliteit
fortabel woongebouw. Daarom zijn er in de
bestaande staalconstructies ter plaatse van
beoogde binnenwanden diagonale verban-
den toegevoegd (fig. 27). Door deze gespreid
in het gebouw toe te passen waren verster-
kingen in de fundering niet nodig.
30 jaar voorbereiding
Al vanaf 2015 wordt er door het ontwerp- en
bouwteam gewerkt aan dit complexe pro-
ject. Daarvoor had eigenaar/ontwikkelaar
Ab van der Wiel al bijna 30 jaar voorberei-
ding getroffen. Dit geeft aan wat erbij komt
kijken om waardevol cultuurhistorisch erf-
goed te transformeren. Naar verwachting
worden de laatste bouwwerkzaamheden in
2026/2027 afgerond.?
CEMENT 3 2025 ?73
In het kort
- De Meelfabriek werd opgericht in 1884 en moest in 1988 om financiële redenen de deuren sluiten
- Een groot deel van de gebouwen wordt getransformeerd, waarbij bestaande constructies rigoureus worden aangepakt om nieuwe functies mogelijk te maken
- Er waren goede archiefgegevens beschikbaar; het was vooral zaak om de staat van de constructie te controleren
- Hergebruik van bestaande silo’s van de silotoren was niet reëel, hergebruik van de bestaande fundering wel
- Op de onderste 560 mm van de bestaande betonnen funderingsplaat van de silotoren is een nieuwe vloer van 1000 mm aangebracht
- Waar in de silotoren de buitenkolommen grenzen aan dragende binnenwanden ontstaat een verschil in thermische uitzetting
- Een uitdrukkelijke wens was om het beton van vloeren en kolommen van het Meelpakhuis zichtbaar te houden
- Bovenop het betonnen casco van het Meelpakhuis is een lichte optopping aangebracht
- Bij het Riffellokaal/Molengebouw zijn ter plaatse van beoogde binnenwanden diagonale verbanden toegevoegd
Foto 1. In het voormalige Meelpakhuis worden loftappartementen gemaakt. Foto: Corentin Haubruge
Projectgegevens
Project: De Meelfabriek
Architect: Studio Akkerhuis, Parijs
Ontwerp masterplan: Peter Zumthor
Constructeur: Pieters
Adviseur bouwfysica en brand: LPB Sight
Installaties: Burg installatietechniek
Beton-, metselwerk- en staalonderzoek: Nebest
Geotechnisch adviseur: Geobest
Onderzoek bestaande palen: Wareco (tegenwoordig Aveco De Bondt)
Aannemer: Van der Wiel Bouw
Betonwerk: Hendriks/Van Muijen Betonbouw en HCI Betonindustrie (prefab)
Omvang: totaal 55.000 m2 BVO
De Meelfabriek ligt aan de centrumzijde van de historische singel in Leiden. De fabriek werd opgericht in 1884 en moest in 1988 om financiële redenen de deuren sluiten. In het 104-jarig bestaan zijn er steeds nieuwe panden bijgebouwd. Het oudste nog bestaande pand is het Ketelhuis uit 1894 en de laatste bouwdelen zijn silo’s, gebouwd in 1960. Na de sluiting kocht ontwikkelaar Ab van der Wiel het complex en redde het daarmee van de sloop, met als idee het cultuurhistorisch erfgoed te behouden en te hergebruiken. In het nieuwe plan wordt De Meelfabriek een knooppunt voor wonen, werken, hotel, spa, horeca en kunst en cultuur.
Bestaande situatie
Het bestaande Meelfabriekcomplex kent een groot aantal gebouwen (fig. 2). Geen gebouw is hetzelfde: ze zijn in verschillende tijden gebouwd, met verschillende bouwmaterialen en systemen. Een groot deel van de gebouwen wordt getransformeerd, waarbij bestaande constructies rigoureus worden aangepakt om nieuwe functies mogelijk te maken. Een klein deel van de bestaande bebouwing is gesloopt, onder meer om vrije zichtlijnen te creëren. En er zijn drie nieuwe gebouwen gemaakt.
Dit artikel, het eerste van een drietal, gaat over de reeds voltooide transformaties (Silotoren, Meelpakhuis en het Riffellokaal/Molengebouw, fig. 3). De nieuwbouw (Parkeergarage en Singeltoren) wordt in het tweede artikel behandeld. In het derde artikel komen de gebouwen aan de orde waar nu nog aan wordt gewerkt, het Silogebouw, de Schoonmakerij en het oude Ketelhuis.
Figuur 2. Overzicht gebouwdelen De Meelfabriek. Het silogebouw, het meelpakhuis en het Riffellokaal/Molengebouw zijn bestaande gebouwen, de Singeltoren, Parkeergarage en het Duwo-gebouw zijn nieuwbouw
Figuur 3. Plattegrond Meelfabriek-complex, gemarkeerd zijn in dit artikel behandelde gebouwen
Controle bestaande constructies
Bij herbestemmingen en onderzoek naar de constructieve mogelijkheden van een gebouw is de aanwezigheid van archieftekeningen essentieel. Er zijn honderden archieftekeningen doorzocht, die goed zijn bewaard in de oude kluis van de Meelfabriek. Ook is het gemeentearchief onderzocht, maar daar was veel minder beschikbaar. Dit toont aan hoe belangrijk goede archivering door gebouweigenaars is.
Als er, zoals bij de Meelfabriek, goede archiefgegevens zijn, dan is het vooral zaak om de staat van de constructie te controleren. Gestart is met een visuele inspectie. Hoewel grote problemen niet altijd goed zijn af te lezen, kun je met een eerste inspectie vaststellen welke materiaalonderzoeken nodig zijn.
De funderingen zijn in eerste instantie gecontroleerd met lintvoegmetingen en waterpassing. Daarmee kon worden geconstateerd waar in het pand de grootste zettingen zijn geweest en waar de grootste scheefstand is ontstaan.
Een groot deel van de bestaande gebouwen is op houten palen gefundeerd en die zijn grotendeels hergebruikt. Op diverse locaties zijn de palen vrijgegraven en geïnspecteerd om te zien of er houtrot was opgetreden, hoeveel draagkracht ze nog hebben en hoelang ze nog meegaan (foto 4). Bij alle gebouwen waren de palen nog goed, behalve bij het uit de 19e eeuw stammende Ketelhuis. Daar waren de palen rot en wordt de complete fundering hersteld met nieuwe palen.
De betonconstructies zijn op basis van de visuele inspectie nader onderzocht (foto 5). Ter plaatse van schades zijn betonkernen geboord en zijn diverse metingen gedaan. Van de betonkernen is gemeten wat de carbonatatiediepte is. En er zijn kernen gedrukt om de druksterkte vast te stellen. Met elektromagnetisch apparatuur werd de positie en diepteligging van wapening gemeten tot een diepte van circa 100 mm. Met een betonradar kon dieper, tot circa 300 mm worden gemeten. Ook zijn potentiaalmetingen aan het beton uitgevoerd, waarmee (na ijking door lokaal open te hakken, foto 6) een inschatting is gemaakt van de te verwachten corrosie in de toekomst.
Foto 4. Onderzoek naar de bestaande paalfunderingen onder de gebouwen
Foto 5. Visuele inspectie liet meerdere type betonschade zien. Op diverse plekken heeft carbonatatie geleid tot corrosie van wapening en afspatten van beton
Foto 6. Meten van de mate van corrosie van de wapening
Silotoren
In 1960 is de Silotoren gebouwd. Deze stond gefundeerd op circa 300 betonpalen met daarop een 1,56 m dikke betonnen funderingsplaat. Daarop zijn betonnen silo’s gebouwd. Deze hadden hele kleine afmetingen: de silocellen waren circa 2 × 4 m2 groot. Hergebruik van de silo’s was daarom niet reëel, maar hergebruik van de bestaande fundering wel. Daarom is het gebouw vanaf de begane grond gesloopt en zijn de funderingspalen en een deel van de funderingsplaat gehandhaafd en hergebruikt. In samenwerking met de geotechnisch adviseur is berekend wat de bestaande fundering kon dragen.
Hergebruik van de bestaande palen was een mooie kans, maar tegelijkertijd ook een noodzaak. Het verwijderen van de bestaande palen was moeilijk voor elkaar te krijgen en zou geotechnisch gezien veel ontspanning in draagkrachtige ondergrond geven. En het maken van nieuwe palen tussen het zeer dichte palengrid zou complex zijn en zwaar heiwerk/schroefwerk opleveren.
Nieuwe bovenbouw
Op de fundering is een nieuw woongebouw van 14 bouwlagen geplaatst (foto 7). Dit heeft een betonnen kern met daaromheen dragende prefab betonkolommen buiten de gevels (fig. 11). De krachten worden in de nieuwe situatie veel minder gespreid dan bij de oude silo’s het geval was. De bestaande betonnen funderingsplaat was niet berekend op het spreiden van de krachten uit de nieuwbouw. Daarom is een nieuwe betonnen plaatfundering gemaakt, met voldoende wapening om de krachten over bestaande palen te spreiden.
Foto 7. De nieuwe Silotoren. Foto: Corentin Haubruge
Op de onderste 560 mm van de bestaande betonnen funderingsplaat is een nieuwe vloer van 1000 mm aangebracht
Nieuwe funderingsplaat
Om een dure bouwkuip te voorkomen, is de onderste 560 mm van de bestaande betonnen plaat van 1560 mm behouden (foto 8). Op deze wijze bleven de paalankers verankerd en werd het grondwater tegengehouden. De bovenliggende 1000 mm is eraf gesloopt, door de vloer over 1000 mm in te zagen in vlakken en vervolgens de vlakken eruit te hakken. Vervolgens is een nieuwe vloer van 1000 mm aangebracht (foto 9).
Op enkele posities treden in de uiterste grenstoestand trek en grote drukkrachten op in de fundering. Daarom waren zes nieuwe tubexpalen nodig. Deze zijn aangebracht door sparingen in de bestaande fundering en gekoppeld aan de nieuwe vloer.
Voor de berekening van de funderingsplaat is een gevoeligheidsanalyse gemaakt, waarbij in de stijfheid van de funderingsplaat en die van de palen is gevarieerd. De nieuwe vloer is op sterkte berekend als een 1000 mm dikke betonplaat; alleen het nieuwe beton dus. Voor de paalreacties is het echter ongunstig als het oude en het nieuwe beton samenwerkt en de plaat zich als een stijve, 1560 mm dikke plaat gedraagt. In de controle van de paalbelastingen is daarmee rekening gehouden door een omhullende paalbelasting en plaatwapening te bepalen.
Ten behoeve van extra stijfheid zijn de oude en nieuwe vloer gekoppeld. Dit door h.o.h. 600 mm ankers in te boren en de vloer ruw te hakken. Voor de vloerwapening zijn er prefab balkvormige korven aangebracht, om de dwarskrachtwapening veilig (arbotechnisch) te kunnen monteren (fig. 10). Er is in overleg met de betonbouwer een stappenplan bedacht voor het leggen van de wapening, op basis waarvan een korventekening is gemaakt en de zware vloerwapening arbotechnisch goed kon worden geplaatst.
Foto 8. Hergebruik van de bestaande fundering nadat de bovenste 1000 mm eraf is gesloopt
Foto 9. Het wapenen van de nieuwe vloer
Figuur 10. Principe wapening funderingsplaat
Dragende kolommen
De nieuwe dragende betonkolommen staan buiten de thermische schil (fig. 11). De vloeren (binnen thermische schil) zijn met isokorven opgehangen aan de kolommen. Voor deze isokorven is in de vloer-kolomkruising slechts weinig ruimte: 400 mm breedte en 300 mm hoogte. Hier moeten forse krachten worden doorgevoerd, waarvoor uitgebreide afstemming met de leverancier van de isokorven (Schöck) heeft plaatsgevonden om de juiste wapeningsconfiguratie te vinden (fig. 12 en 13).
Een aantal buitenkolommen grenzen aan dragende binnenwanden. Hier ontstaat op korte afstand een verschil in thermische uitzetting. Door de buitenkolommen op deze posities niet-dragend te maken en verticaal schuivend uit te voeren, worden thermische vervormingsverschillen toegelaten zonder grote opgelegde momenten en dwarskrachten. Dit is gerealiseerd met een detail met een stalen plaat met holle achterruimte (‘bakje’), die is verankerd in de vloerrand. Met slobgaten in de stalen plaat is voor de mogelijke translaties gezorgd.
Figuur 11. Met oranje gemarkeerde niet-dragende kolommen om thermische vervormingsverschillen tussen binnen- en buitenconstructies mogelijk te maken
Figuur 12. Opgave van krachten in alle richtingen op de isokorven, bij de aansluiting van de dragende kolommen
Figuur 13. Uitwerking van het isokorfdetail bij de aansluiting van de dragende kolommen
Het Meelpakhuis
In het voormalige Meelpakhuis zijn loftappartementen gemaakt (foto 1). Het pakhuis kende een zware functie; er lag veel meel opgeslagen en er werd met zwaar materieel gewerkt. Uit herberekening van het bestaande betonskelet en de fundering bleek dat op het bestaande gebouw drie nieuwe verdiepingen konden worden gemaakt.
Omdat het hogere gebouw veel meer wind vangt, is middenin het gebouw een nieuwe stabiliteitskern gemaakt (fig. 20). Onder deze kern zijn 25 nieuwe Tubex-groutinjectiepalen geslagen.
Bestaande paalfundering
Van de bestaande paalfundering met ruim 1200 vurenhouten palen waren archieftekeningen beschikbaar. Er zijn inspectieputten gegraven. Negen palen zijn op houtrot gecontroleerd. In alle onderzochte palen werd bacteriële aantasting vastgesteld. Op basis van de analyse van houtmonsters en de restdiameter van de paalkoppen, is de kwaliteit van de palen echter als ruim voldoende beoordeeld.
Op twee palen zijn proefbelastingen uitgevoerd. Op basis van een maximale drukkracht in de nieuwe situatie van 140 kN, zijn de palen beproefd tot 395 kN. Deze hoge proefbelasting komt voort uit de te rekenen veiligheidsfactor (hier vanwege beperkte steekproef factor 1,51), de te rekenen negatieve kleef in eindsituatie van 92 kN en de optredende positieve kleefbelasting tijdens de proeven van 92 kN. De testbelasting is daardoor:
Ftest;SLT;max = 140 × 1,51 + 92 + 92 = 395 kN
De proefbelasting is in zeven stappen met 30 en 60 minuten interval aangebracht (fig. 14). Zo kon de draagkracht worden getest en aangetoond. Op basis van de proefbelasting en een berekening van de optredende negatieve kleef is een gemiddelde draagkracht van de bestaande palen gevonden van 155 kN.
Het was bovendien belangrijk dat met funderingsinspecties werd gecontroleerd of de palen ook conform de archieftekeningen waren uitgevoerd. Bij deze inspecties werd geen afwijking van het palenplan aangetroffen.
Figuur 14. Tijd-kracht diagram van de proefbelasting van een van de palen
Een uitdrukkelijke wens was om het beton van vloeren en kolommen zichtbaar te houden
Bovenbouw
In het ontwerp van het nieuwe loftgebouw is de bestaande metselwerkgevel verwijderd om daglicht naar binnen te halen (fig. 15). Bovendien zijn de vloeren rondom verlengd om ruimte te maken voor balkons (fig. 16) en zijn de gevelkolommen, die in de gevel recht waren, weer aangevuld tot een achthoek (fig. 17). Een uitdrukkelijke wens van ontwikkelaar en architect was om het beton van vloeren en kolommen zichtbaar te houden. Dit leidde tot een complex detail, waarbij de gevel naar achter ligt en de vloeren van binnen naar buiten doorlopen (fig. 18).
Samen met de bouwfysisch adviseur is hiervoor een oplossing gevonden. Geïnspireerd door de Zollverein School in Essen (architect Sanaa) is onderzocht of met verwarmingsleidingen het temperatuursverschil in de vloeren kon worden beperkt om condens- en schimmelvorming te voorkomen. Waar in de Zollverein de warmte een restproduct is van de Kolenmijn, is bij de Meelfabriek de energie niet gratis en was de wens om het energieverbruik met isolatie te reduceren. Daarom zijn de vloeren lokaal voorzien van sparingen (perforaties), die zijn gevuld met isolatie (fig. 18). Door de bestaande 180 mm dikke vloeren een nieuwe druklaag te geven kon de vloer waar nodig worden versterkt en konden de uitkragingen in de vloeren worden gemaakt.
Van de bestaande vloeren zijn geen wapeningsarchieftekeningen gevonden. In samenwerking met Nebest is de vloerwapening gescand. De vloervelden zijn circa 5 × 5 m2 groot en bleken diagonaal gewapend (fig. 19).
Vanwege de vroegere zware belasting was de capaciteit van de vloeren relatief hoog. Op basis van de beschikbare informatie konden alle controleberekeningen worden gemaakt. De te maken sparingen, uitkragingen en de druklaag zijn zodanig ontworpen dat de onderwapening in de bestaande vloer nog voldeed.
Alleen de dakvloer was niet sterk genoeg. Uit de wapeningsscans bleek dat de vloer door corrosie van deze wapening onvoldoende veilig was. De vloer is in de nieuwe situatie opgehangen aan de nieuwe constructies van de optopping (zie hierna).
Figuur 15. Gestript Meelpakhuis. Foto: Corentin Haubruge
Figuur 16. Schema van de nieuwe plattegronden. Met uitbreiding rondom aan het gebouw (rood) nadat de metselwerk gevels zijn verwijderd. In het midden is de stabiliteitkern met rond trappenhuis zichtbaar
Figuur 17. De oude kolommen waren in de gevel afgesneden en zijn in de nieuwe situatie weer aangestort tot achthoeksvormen
Figuur 18 . Principedetail binnen-buitenvloer met nieuwe betonvloer, perforatie en vloerverwarming om koudebrug te voorkomen
Figuur 19. Output van de wapeningsscans waarin zowel onderwapening als bovenwapening is gemeten. De scans zijn geijkt door lokaal de vloer open te hakken en wapening op te meten
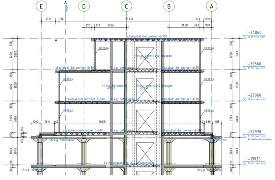
Optopping
Bovenop het betonnen casco is een lichte stalen constructie toegevoegd voor drie nieuwe verdiepingen met staalplaatbetonvloeren (fig. 20). De nieuwe opbouw ligt iets terug van de bestaande gevels. Deze setback wordt gedragen met stalen liggers boven het bestaande dak. Deze liggers dragen de nieuwe verdiepingen en de terugliggende gevels. Zoals eerder aangegeven is de oude dakvloer aan deze staalconstructie opgehangen. De optopping wordt gestabiliseerd door de betonkernen die vanuit het bestaande gebouw doorlopen.
Door het lage gewicht van de drie vloeren was versterking van de bestaande houten palen niet nodig.
Figuur 20. Doorsnede Meelpakhuis
Kolommen en trappenhuis
De bestaande constructie is fotogeniek, al het beton blijft in het zicht. Opvallend zijn onder andere de achthoekige kolommen, voorzien van ponskoppen (foto 21). Een bijzonder element is ook het ronde trappenhuis in het midden van het gebouw (foto 22). Er zijn cirkelvormige trappen gemaakt, ter referentie aan de meelglijbanen in de oude fabriek (foto 23).
Foto 21. Het oorspronkelijke interieur van het Meelmagazijn, met prachtig zichtwerk beton dat door dichte metselwerkgevels aan het zicht onttrokken was. Foto: Suzanne Baars
Foto 22. Cirkelvormige ruimte in het midden van het gebouw voor het ronde trappenhuis. Foto: Corentin Haubruge
Foto 23. Rond trappenhuis als verwijzing naar de oude meelglijbanen. Foto: Corentin Haubruge
Foto 24. De oude meelglijbanen. Foto: Suzanne Baars
Foto 25. Het voormalige Molengebouw en Riffellokaal is een nieuw loftgebouw geworden voor 30 lofts. Foto: Corentin Haubruge
Bestaande constructie
De bestaande constructie van respectievelijk acht en zeven bouwlagen bestaat uit momentvaste stalen portalen, houten vloeren en metselwerk gevels (foto 26). De portalen staan h.o.h. 5 m. Daartussen liggen secundaire stalen liggers h.o.h 2,5 m. Tussen die secundaire liggers overspant de houten vloer van 60 mm dikke platte balken. Het gebouw is gefundeerd op houten palen (Riffellokaal) en op betonnen palen (Molengebouw).
Voor de transformatie zijn de houten vloeren voorzien van een 180 mm betonnen druklaag, met daarop een zwevende dekvloer. Hiermee verbetert de geluidskwaliteit, is de vloer brandwerend en is er een tweede draagweg gecreëerd. De staalconstructies zijn brandwerend gecoat. Zowel de staalconstructies als de houten vloeren zijn zichtbaar gebleven in de lofts.
Foto 26. Bestaande constructie Molengebouw met stalen spanten en houten vloeren, die zijn overlaagd met beton
Bij het Riffellokaal/Molengebouw zijn ter plaatse van beoogde binnenwanden diagonale verbanden toegevoegd
Optopping
Op het gebouw is een eenlaagse (Riffellokaal) en tweelaagse (Molengebouw) optopping gemaakt (fig. 27). De optopping heeft een staalconstructie met staalplaatbetonvloeren en een houten balklaag voor het dak. In de optopping is een groot penthouse met dakterras gemaakt.
Vanwege de grotere hoogte door de optopping was een versterking voor stabiliteit nodig. De bestaande staalconstructie is volledig doorberekend. Hieruit bleek dat het in de oorspronkelijke toestand al erg veel vervormde bij wind. Te veel voor een comfortabel woongebouw. Daarom zijn er in de bestaande staalconstructies ter plaatse van beoogde binnenwanden diagonale verbanden toegevoegd (fig. 27). Door deze gespreid in het gebouw toe te passen waren versterkingen in de fundering niet nodig.
Figuur 27. In de 3D-overzichten zijn de oude (wit) en nieuwe (blauw) constructies goed zichtbaar. Met extra kruizen en diagonalen voor stabiliteit
30 jaar voorbereiding
Al vanaf 2015 wordt er door het ontwerp- en bouwteam gewerkt aan dit complexe project. Daarvoor had eigenaar/ontwikkelaar Ab van der Wiel al bijna 30 jaar voorbereiding getroffen. Dit geeft aan wat erbij komt kijken om waardevol cultuurhistorisch erfgoed te transformeren. Naar verwachting worden de laatste bouwwerkzaamheden in 2026/2027 afgerond.
Reacties